云南省草地动物科学研究院马鸣基地A栋牛舍外墙体封闭改造工程询价采购
发布时间:2022-12-24
来源: 云南省农业农村厅
作者:佚名
根据《中华人民共和国政府采购法》《中华人民共和国招标投标法》《中华人民共和国政府采购法实施条例》《云南省人民政府办公厅关于印发云南省政府集中采购目录及标准(2021年版)的通知》文件精神,及《云南省草地动物科学研究院自行采购管理暂行办法》规定,现通过发布公告的方式邀请具备相关服务能力供应商参与本项目的询价采购活动。
一、项目名称:云南省草地动物科学研究院马鸣基地A栋牛舍外墙体封闭改造工程。
二、采购人名称:云南省草地动物科学研究院。
三、工程内容:

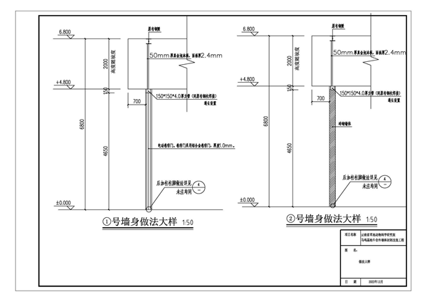
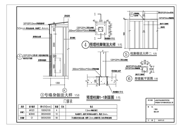
四、施工图:
见附件1。
五、项目预算:47万。
六、相关报价文件
请有意向参与报价的公司于2022年12月23日17时前递交相关报价文件,报价文件:1.企业证明文件:营业执照、税务登记证、组织机构代码证复印件加盖公章并标注复印件与原件一致,已登记办理“三证合一”的企业仅须提供有社会信用代码的营业执照复印件加盖公章并标注复印件与原件一致;2.报价单:报价货币为人民币,供应商单位报价不得超出预算金额,不得哄抬报价,也不应低于成本价,加盖公章;3.此次询价不接受二次报价,报价文件密封提交。
七、相关文件递交地点:云南省昆明市滇中新区小哨哨关公路13号云南省草地动物科学研究院。
八、采购单位:云南省草地动物科学研究院。
联系人:李天平
联系电话:0871-67391381
云南省草地动物科学研究院
2022年12月19日
(拟稿人:李天平 审核人:王安奎)
附件1(施工图)










原文链接:https://nync.yn.gov.cn/html/2022/caigougongkai_1219/393419.html?cid=3006
[免责声明] 本文来源于网络转载,仅供学习交流使用,不构成商业目的。版权归原作者所有,如涉及作品内容、版权和其它问题,请在30日内与本网联系,我们将在第一时间处理。
最新加入
2020-07-15
江西天皓房地产有限公...
2020-05-13
致上饶市政府陈云市长...
2020-05-13
致江西省自然资源厅张...
2024-01-12
致沈阳市市纪委书记、...
2020-05-13
致上饶市委马承祖书记...
2020-04-28
土地性质:一定要辨别...
2020-04-23
圈地千亩国际健康峰会...
2020-04-24
农村土地新政策,抛荒...
2020-04-28
黑土地“金豆子”鼓了...
热门资讯
2020-07-15
江西天皓房地产有限公...
2020-05-13
致上饶市政府陈云市长...
2020-05-13
致江西省自然资源厅张...
2024-01-12
致沈阳市市纪委书记、...
2020-05-13
致上饶市委马承祖书记...
2020-04-28
土地性质:一定要辨别...
2020-04-23
圈地千亩国际健康峰会...
2020-04-24
农村土地新政策,抛荒...
2020-04-28
黑土地“金豆子”鼓了...
2021-06-23
致鄂尔多斯市东胜区政...





